about > Portfolio > CASA MARTE

CASA MARTE

CASA MARTE

nome progetto

CASA MARTE

categoria progetto

HOUSE

luogo

SAN PIETRO IN B. (TA)

completamento

NOVEMBRE 2022

CREDITS

progetto architettonico

ARCH. ALESSIO ZANZARELLA

direttore lavori

ARCH. ALESSIO ZANZARELLA

foto

LA GALERIE - studio fotografico

cucina + isola

BAUX (Faggiano)

rivestimenti cornici infissi

LAMINAM

fornitura rivestimenti

OLIVIERI CERAMICHE (Avetrana)

trasformazione rivestimenti

OLMOLAB (Avetrana)

CASA MARTE è un progetto che ho condotto in collaborazione con Olivieri Ceramiche e Olmolab di Avetrana. Si tratta di una villa nella periferia di San Pietro in Bevagna (TA) in cui le attività progettuali hanno riguardato:

- la realizzazione di una cucina con isola che si affaccia sull’open-space;

- i pavimenti interni;

- l’ideazione e la progettazione dei bagni;

- le gradonate e i pavimenti del ballatoio esterno;

- le cornici degli infissi.

Il gioco di squadra instauratosi con il committente, ha determinato una rigorosa linea stilistica fondata sull’utilizzo della scala dei grigi che ha costituito la “base cromatica”; su questa poi si è delineato un percorso di leggeri “stacchi” tonali e materici: dal “bianco champagne” della cucina prodotta da BAUX (Faggiano - TA) fino ad alcuni accenti di colori tenui, contrapposti al colore “nero ossido” del gres Laminam ricorrente nelle cornici degli infissi. Una neutralità che fa da sfondo a piccole sculture e forme colorate sparse nell’abitazione e realizzate dallo stesso proprietario: un appassionato produttore per diletto di ceramiche artistiche.

Al seguente LINK, la pubblicazione di alcune foto scattate da me al completamento dei lavori, riproposte anche di seguito e che rappresentano le perfette lavorazioni sul gres effettuate da Olivieri Ceramiche e Olmolab di Avetrana.

Di seguito, alcune foto che hanno caratterizzato l’attività progettuale:

- il confronto con Mariella, titolare di BAUX;

- alcuni scatti realizzati durante la cantierizzazione;

- i rendering delle prime bozze progettuali realizzate da Filograno Kitchen (Manduria - TA);

- la prima bozza dei 2 bagni adiacenti;

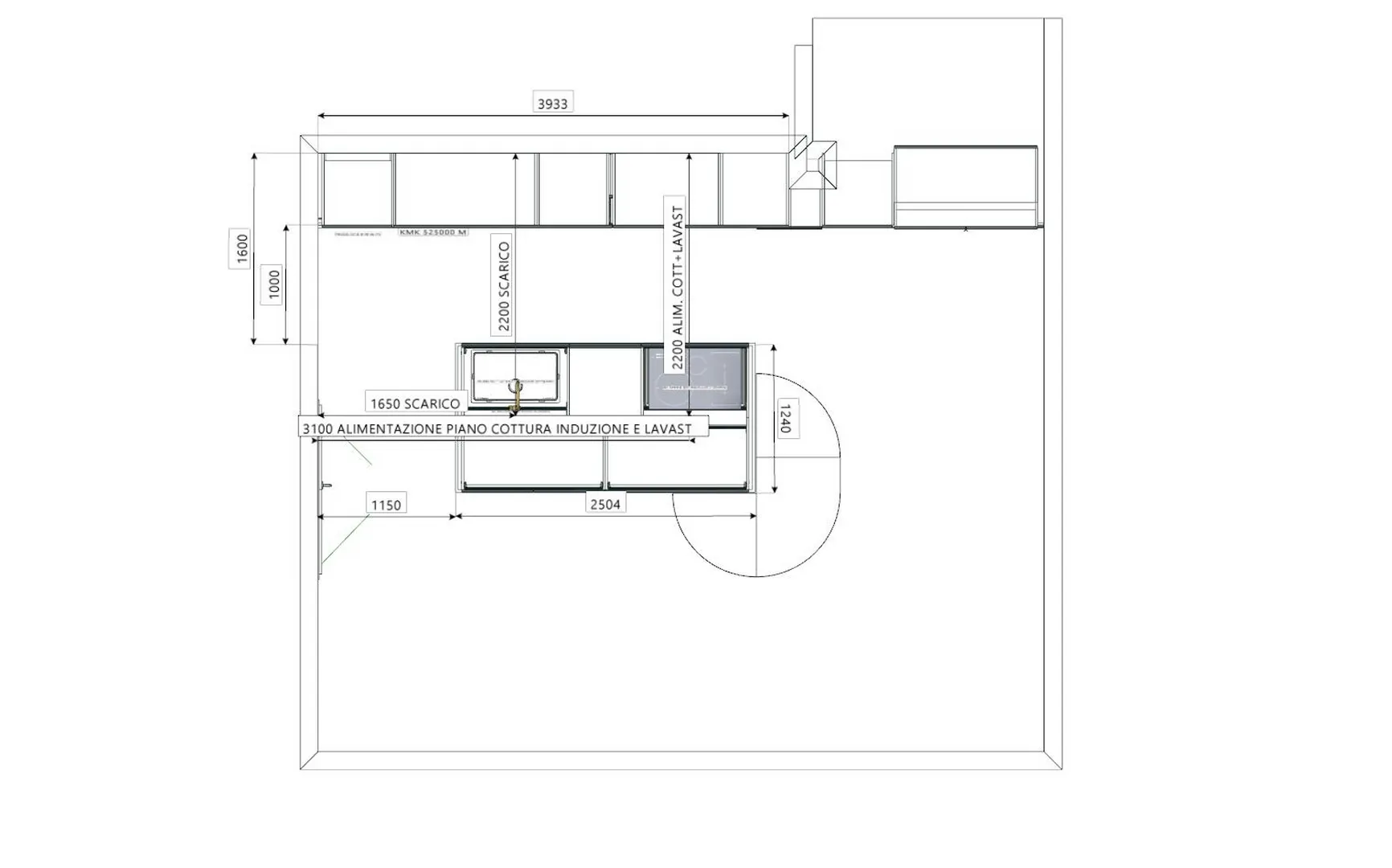
- alcuni schemi della parete cucina con il “passaggio fantasma a libro”, realizzato in complanarità con le ante;

- gli schemi dimensionali della cucina con l'isola.

portfolio in evidenza

portfolio