nome progetto
TMGYM
categoria progetto
SPORT
luogo
SAVA (TA)
completamento
APRILE 2025
progetto architettonico
ARCH. ALESSIO ZANZARELLA
direttore lavori
ARCH. ALESSIO ZANZARELLA
foto
LA GALERIE - studio fotografico
wall panels
WOODUPP
attrezzature sportive "open"
PANATTA
attrezzature sportive "premium"
TECNOGYM
cartongessi
Prudenzano (Sava)
pitturazioni
Prudenzano (Sava)
resine
Prudenzano (Sava)
specchi
Doria (Sava)
falegnameria
Per Passione (Sava)
TMGYM è una palestra ubicata a Sava (TA), ricavata all’interno di un capannone originariamente adibito ad uso artigianale. La scelta del proprietario Tony Mancino di insediare in questa enorme “scatola” la sua attività di istruttore ginnico ed esperto di body-building, racconta perfettamente la filosofia di TMGYM: per allenarsi occorrono spazi adeguati, dimensionati sul rapporto corpo-macchina-fruibilità.
TMGYM si prefigura pertanto come un brand che ha assolutamente modificato il concetto di palestra tradizionale convertendolo in un vero e proprio “stile di vita”, prendendo spunto da esperienze già vissute da Tony, in prima persona, negli States.
Per approntare questa nuova filosofia sportiva, Tony si è servito del mio supporto come progettista e architetto e insieme abbiamo studiato una soluzione per modificare e migliorare il vecchio adeguamento già operato in “versione beta” da lui stesso in questo luogo che, anche alla luce del recente intervento, è divenuto una sorta di “totem urbano”, grande per dimensioni, ma soprattutto “grande” nel messaggio che lancia non solo al quartiere circostante, ma a tutta la provincia di Taranto e oltre.
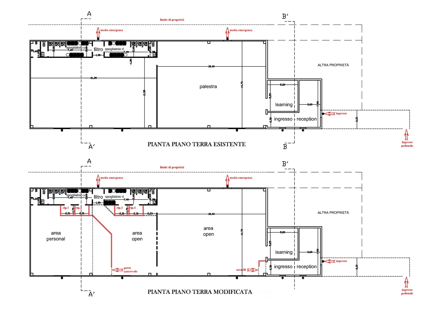
Un’area di 1400 mq per metà scoperta, in cui prendono posto 2 campi da paddle, e per metà coperta, ben circa 700 mq di spazio suddiviso tra:
- ingresso “welcome point”, circa 60 mq;
- sala “open”, circa 350 mq;
- sala “premium”, circa 200 mq;
- più altri spazi accessori (“changing room”, “posing room”, “coaching”).
Il progetto architettonico prende forma dalle funzioni e dalla esatta disposizione di tutte le attrezzature ginniche volute da Tony, da me analizzate una ad una, dimensionate e collocate nella planimetria insieme ai rispettivi percorsi di viabilità e usabilità di ciascuna macchina.
Ho definito così i dimensionamenti degli spazi, dalle macro-aree alle piccole pertinenze, come fossero una conseguenza del “contenuto”. Il “contenuto” è costituito dalle attrezzature, dalle persone che le usano, dalle superfici adiacenti necessarie a rendere il momento sportivo, un momento di piacere, di intrattenimento, nella completa libertà di muoversi da una zona all’altra come ci si trovasse in una enorme “nave” dedicata alla cultura del corpo.
Interessante da un punto di vista strutturale è il solaio sospeso con cavi d’acciaio rivestiti da tubolari, che crea una zona di “compressione”, rendendo leggibile e armonico il passaggio alla sala “premium” (più piccola di quella “open”) dedicata agli allievi che sono seguiti da istruttori “personal” a porte chiuse.
Il percorso che unisce le varie macro-aree è rifinito in resina ad alta resistenza colore “taupe chiaro”, unico materiale di pavimentazione diverso dal tappetino nero puntinato in TPE che è invece utilizzato per l’intera estensione della palestra.
La luce artificiale e il colore delle pareti “moka” sono risultati i due elementi più complessi da bilanciare: Tony ha sostenuto fin da subito l’idea di un’atmosfera “ovattata”, sul piano illuminotecnico; e pertanto ho sviluppato un’illuminazione più puntuale, sospesa su binari elettrificati, in contrapposizione a quella della sala “open” più “dilatata”.
La pianificazione dei colori è avvenuta vivendo il cantiere, cercando di captare le sensazioni del luogo nelle varie fasce orarie, giungendo a soluzioni di nuance che dal “moka” scivolano verso “patinature” color verde-oliva e bianco-glauco.
L’utilizzo dei wall panels by Woodupp (in vero legno di rovere), crea la “rottura” nel panorama dei trattamenti di superficie, riportando il fruitore ad una dimensione più autentica, quasi più domestica.
Così come le geometrie delle sedute di attesa, appena adiacenti allo spazio “changing room”, sono come delle piccole “alcove”, dove per un attimo ci si può anche sedere, magari per meditare sulla straordinaria forza ed energia che l’essere umano possiede.
Il progetto dell’area “welcome point” è stato caratterizzato da una particolare complessità soprattutto derivante dalla esiguità dello spazio a disposizione, considerando che il bancone reception, oltre a dover assolvere la sua funzione di mobile contenitivo per gli archivi gestionali, costituisce anche il primo elemento visibile appena varcato l’ingresso; pertanto ho ipotizzato in un primo momento, così come richiesto dal cliente, di concepirlo con finitura legno rovere, integrandolo con i ripiani che sarebbero stati realizzati di lato; successivamente ho ideato un elemento più semplice, rivestito con resina colore taupe chiaro e moka nella porzione inferiore, illuminata con una lineare radente, dove ho posizionato la firma vettorializzata di Tony Mancino.
Interessante il progetto delle “infografiche” sparse per la palestra e realizzate con caratteri a rilievo in materiale plexiglass, tutte disegnate e curate nei dettagli; e gli specchi realizzati con telaio strutturale, sospesi con “stacco” rispetto al piano di posa e in alcuni casi anche retro-illuminati.
A seguire, tutte le fasi della realizzazione, da cui si può evincere quanta attenzione e cura è stata prestata nella direzione di questo cantiere, dalla prima posa delle pendinature del controsoffitto fono-assorbente, sino al posizionamento di tutte le attrezzature ginniche.
Al seguente LINK, gli scatti effettuati durante il photo-shooting, dopo il completamento della palestra TMGYM.
20 aprile 2025
Oggi abbiamo finalmente terminato lo shooting fotografico di TMGYM, una palestra a Sava (TA) di cui ho diretto i lavori, completati ad aprile di quest’anno. Claudio Settembrini, dello studio fotografico LA GALERIE di Carmiano (LE), che mi accompagna spesso nei miei “reportage architettonici”, ha effettuato e post-prodotto gli scatti degli elementi più significativi di questa straordinaria realtà s...
Continua...
16 giugno 2025
Presentazione di una proposta dello spazio "COACHING", interno alla palestra TMGYM, i cui lavori sono stati completati ad aprile di quest'anno (vedi LINK per scoprire il progetto completo). Lo spazio "COACHING" che costituisce l'ufficio privato di Tony Mancino, proprietario della palestra, è l'unico ambiente in cui ancora non sono stati effettuati lavori, in attesa di definirne meglio la sua funzi...
Continua...