about > Portfolio > EUGENIA

EUGENIA

EUGENIA

nome progetto

EUGENIA

categoria progetto

RETAIL

luogo

LATERZA (TA)

completamento

GIUGNO 2018

CREDITS

progetto architettonico

ARCH. ALESSIO ZANZARELLA

direttore lavori

ARCH. ALESSIO ZANZARELLA

foto

SIMONE BOCCUZZI

rivestimenti

LAMINAM 

porte scorrevoli

RIMADESIO 

illuminotecnica

LINEALIGHT 

fornitura rivestimenti

OLIVIERI CERAMICHE (Avetrana)

trasformazione rivestimenti

OLMOLAB (Avetrana)

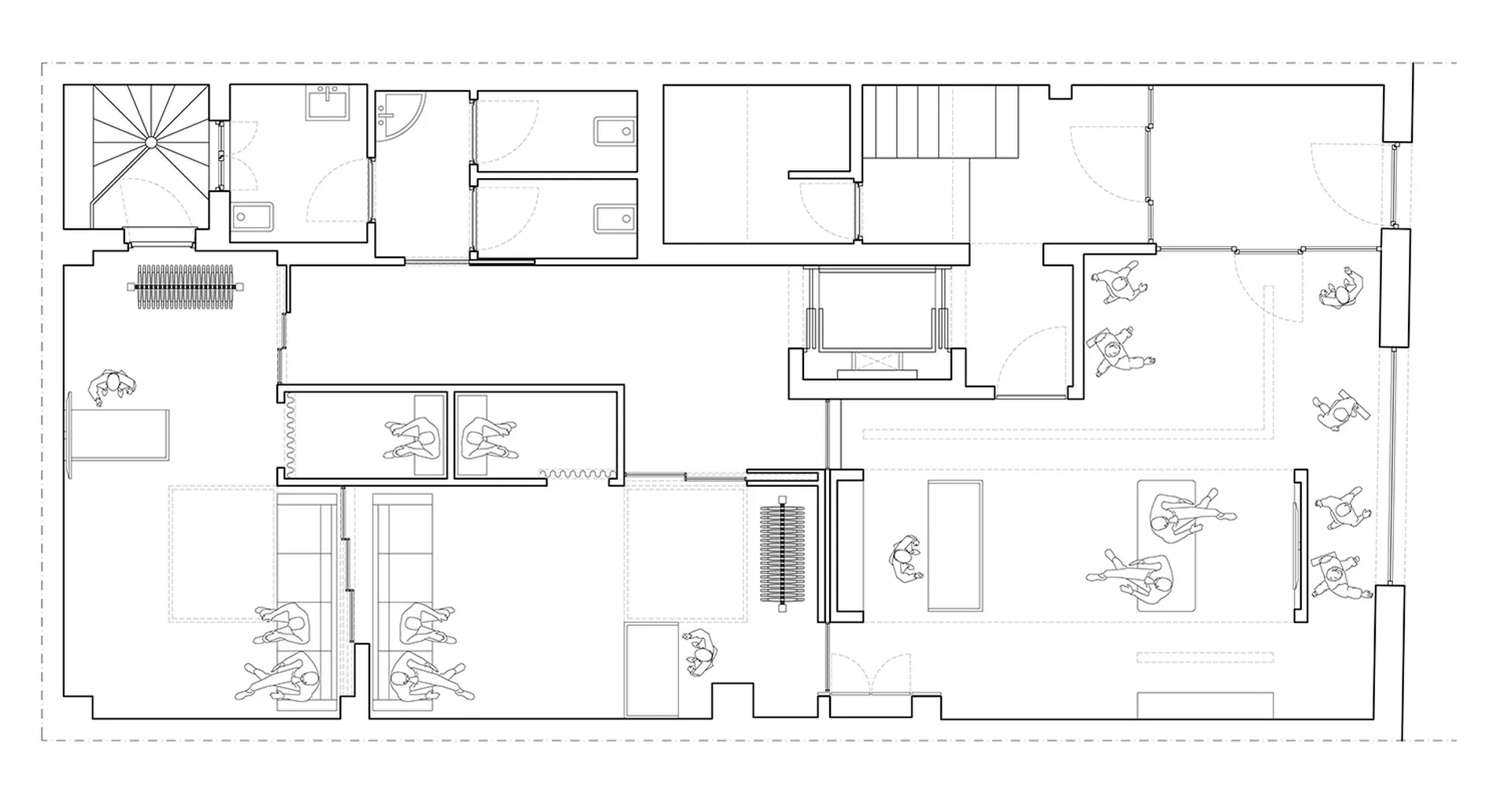
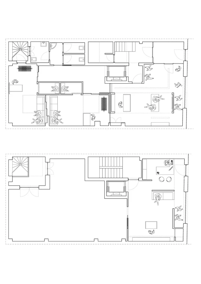
EUGENIA è un negozio di abiti da uomo per cerimonie. Il concept funzionale si basa sulla suddivisione dello spazio in 4 macro-aree: l'ingresso, le 2 camere con relativi camerini, i bagni. L'ingresso è caratterizzato dalla presenza di volumi "puri" (il volume ascensore, il bancone, etc.) in un gioco di contrasti e slittamenti che avvolgono completamente il fruitore e che creano una elegante atmosfera di attesa, attraverso l'isola di sedute e il televisore incastonato.

La creazione delle 2 camere, chiuse rispetto al restante locale per mezzo di scorrevoli trasparenti, testimonia la filosofia commerciale del proprietario, il quale ha deciso di affrontare la vendita del vestito in intimità col suo cliente, in uno spazio esclusivo, dove potersi isolare insieme ai familiari più stretti, che possono sedere sui divani durante il cambio d'abito. All'occorrenza, le 2 camere possono trasformarsi, aprendo lo scorrevole interposto, diventando un unico ambiente, in modo da ospitare clienti particolari che richiedono un più ampio spazio di accoglienza.

Il negozio è stato progettato nei minimi dettagli, approfondendo anche sia la giusta collocazione, sia la "viabilità" dei carrelli porta-abiti, strumento indispensabile alla vendita. In generale il concept architettonico gioca sulla contrapposizione armonica tra il "peso specifico" dei volumi, rivestiti con gres porcellanato basso spessore, e la "leggerezza" dei sistemi di chiusura, realizzati con scorrevoli (a tutta altezza) di vetro trasparente incorniciato da un sottile profilo di alluminio colore brown. Inoltre è stata data molta importanza al progetto illuminotecnico, selezionando apparecchi con una elevatissima "resa cromatica" per distinguere il colore nero-blu degli abiti.

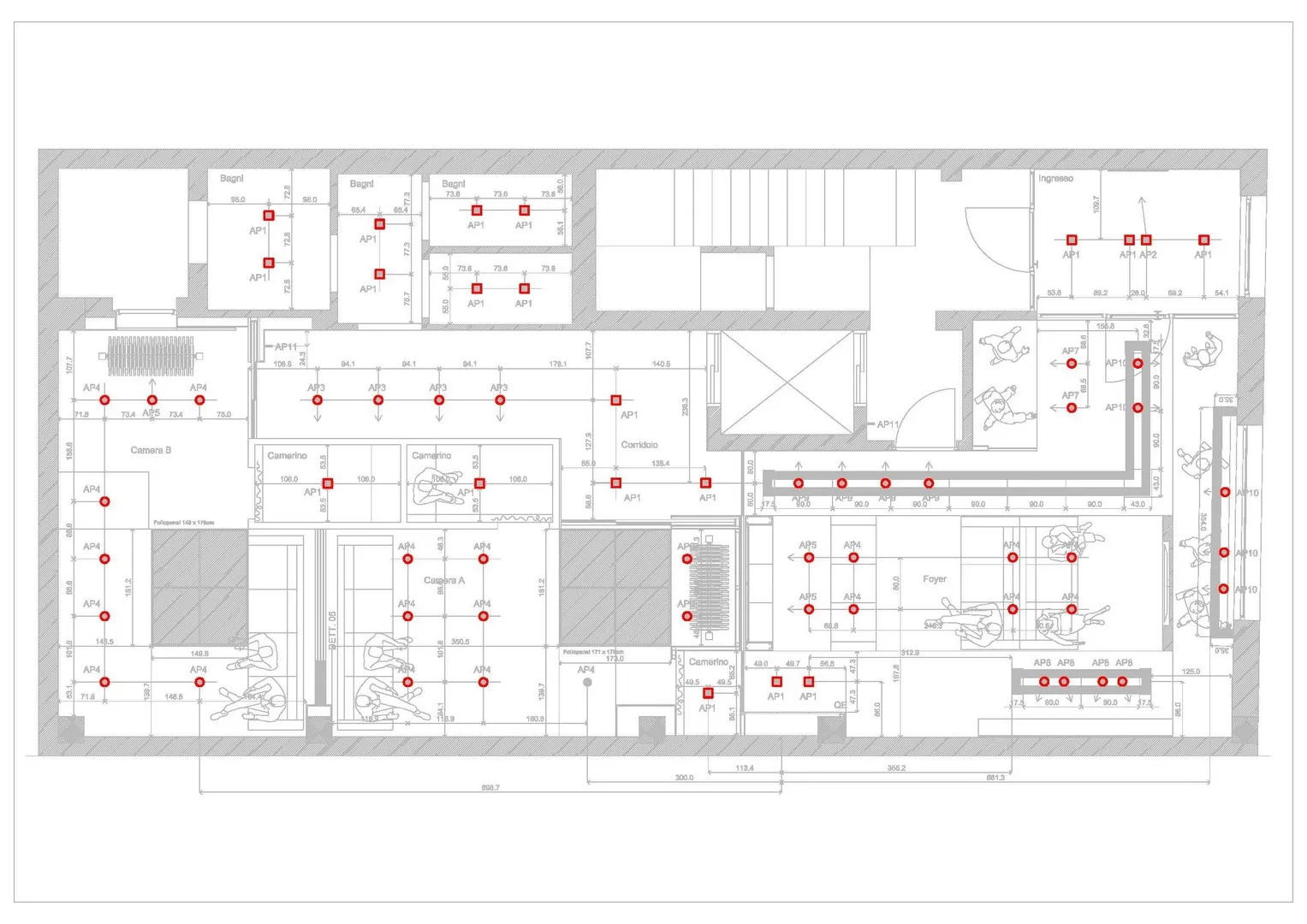
Nella sezione seguente vengono mostrate alcune immagini di schemi da me realizzati durante tutte le fasi del cantiere: progetto architettonico, illuminotecnico, planimetrie di cantiere, progetto di posa dei pavimenti, assonometrie dei cartongessi, soluzioni per la configurazione della vetrina, dettagli esecutivi di arredi "su misura", etc.

Di seguito invece alcune immagini che rappresentano le fasi salienti della cantierizzazione: stato grezzo, stesura delle strutture dei cartongessi, passaggio degli impianti di raffrescamento-riscaldamento-ventilazione, creazione di tutti gli elementi integrati a "scomparsa" nel controsoffitto, montaggio della grande vetrata con ventosa, finiture e rivestimenti.

Al seguente LINK la news della prima volta che ho messo piede nel cantiere.

Per concludere, le immagini degli arredi realizzati nei laboratori di falegnameria e trasformazione del gres porcellanato.

Al seguente LINK, la news dei primi scatti effettuati al termine del cantiere.

portfolio in evidenza

portfolio