about > Portfolio > CASA DAMUR

CASA DAMUR

CASA DAMUR

nome progetto

CASA DAMUR

categoria progetto

HOUSE

luogo

LECCE (LE)

completamento

MARZO 2021

CREDITS

progetto architettonico

ARCH. ALESSIO ZANZARELLA

direttore lavori

ARCH. ALESSIO ZANZARELLA

foto

LA GALERIE - studio fotografico

pavimento

ABK

rivestimento bagno grande

ABK

rivestimento bagno piccolo

LAMINAM

fornitura rivestimenti

OLIVIERI CERAMICHE (Avetrana)

trasformazione rivestimenti

OLMOLAB (Avetrana)

posa cartongessi

O.KEY (Avetrana)

posa rivestimenti

O.KEY (Avetrana)

mobili bagno

O.KEY (Avetrana)

altri mobili

BARBA ARREDI (Monteroni)

CASA DAMUR è un elegante appartamento situato a Lecce che ho progettato in collaborazione col team O.KEY - chiavi in mano. Oltre ad essere caratterizzata dalle meravigliose aperture rivolte su Via Petrarca, l’abitazione si distingue per la scelta delle finiture “senza tempo”, in un gioco di nuance che, dal taupe chiaro effetto pietra del pavimento, si estendono fino a toni più omogenei ma ugualmente identitari, come il “roccia”, il “sale” e il “rena” della collezione Fokos, by Laminam, utilizzati nei bagni.

Fino a raggiungere toni caldi e intensi, come quelli dei mobili integrati, realizzati da Barba Arredi (Monteroni): quello del ripostiglio, con una superficie “fantasma” che funge anche da “quinta” di sfondo del corridoio e quello del living, "spezzato" da un elemento orizzontale finitura legno naturale.

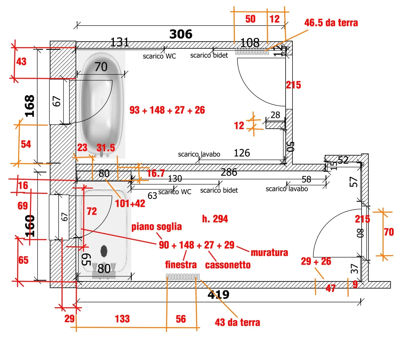
I progetti dei 2 bagni (uno con doccia e uno con vasca) sono stati ideati in modo da sfruttare al massimo le piccole metrature disponibili, costituendo quasi delle micro-architetture, in cui i volumi, le superfici, i ribassamenti e le linee di luce, definiscono lo spazio in modo rigoroso, senza equivoci.

Di seguito le immagini dei modelli preliminari dei 2 bagni.

Qui sono invece rappresentate le proposte per la parete TV della sala living, caratterizzata da uno sfondo rivestito con carta da parati in "stile vegetale" by Styl'Editions e mobile da parete a parete con top in gres effetto ossido.

A seguire, le foto di cantiere, raggruppate per ogni ambiente.

Nel bagno-doccia, il mobile verticale è rivestito in gres e si erge sfruttando al massimo lo spazio tra lavandino e rinfianco della porta di ingresso, utile, contenitivo ma anche sobrio ed elegante.

Nel bagno-vasca, invece, è il mobile del lavabo ad essere stato progettato interamente in gres; la struttura di questo mobile comprende un fianco (ugualmente sotto-strutturato) rivolto verso la vasca idromassaggio e situato alla minima distanza utile da essa per salvaguardarne l’usabilità. La direttrice su cui si allinea lo stesso fianco, crea però sulla parete una linea di confine tra i toni del rivestimento, definendo anche gli ambiti di utilizzo. Il mobile bagno, inoltre, si integra nello spazio che lo circonda, sfruttando “su misura” anche la rientranza creatasi tra cavedio (ugualmente rivestito con il grande formato) e parete; nella stessa rientranza, in alto, prendono posto 3 comodi ripiani in gres. Il rivestimento con i grandi formati quindi letteralmente si “spalma” sui volumi, sulla falegnameria, sulle pareti, nelle nicchie non solo “decorando” l’ambiente, ma aggiungendo capacità di resistenza verso gli agenti usuranti (vedi LINK dell'ultimazione del bagno con vasca).

Il concetto di progettazione TOUT-COURT viene ripreso anche nello sviluppo dei controsoffitti della sala living, caratterizzata da gole e linee di luce in prossimità dei tendaggi e dello scatolato che conterrà il televisore.

portfolio in evidenza

portfolio