about > News > RS.HOUSE BOZZETTI

12 settembre 2010

RS.HOUSE BOZZETTI

RS.HOUSE BOZZETTI

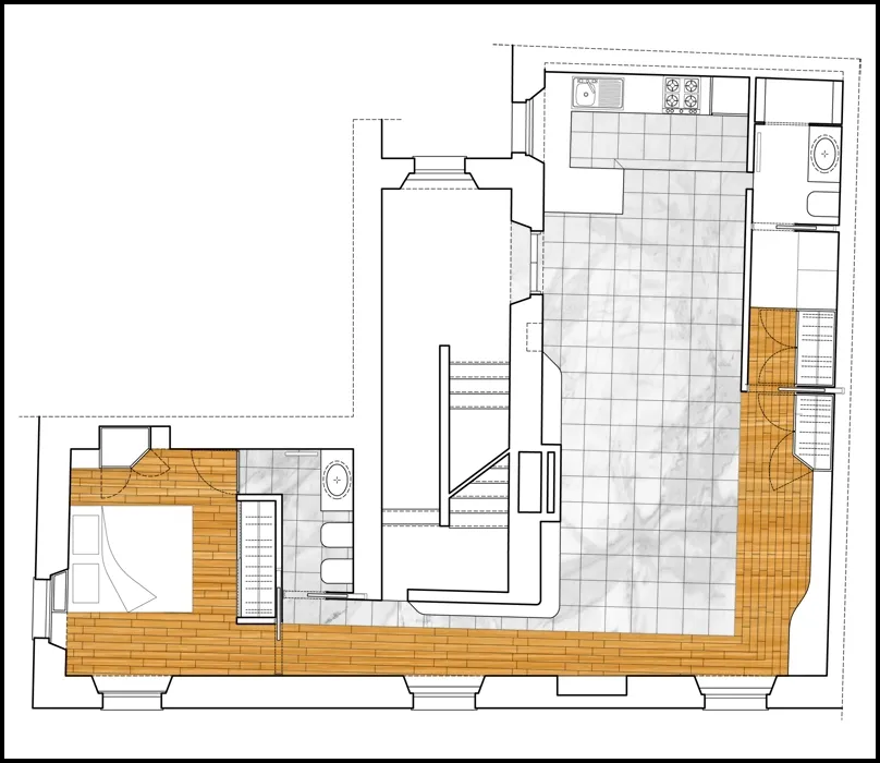
Questo nuovo progetto sarà davvero una bella sfida; si tratta di RS.HOUSE, una residenza che dovrò realizzare unendo 2 piccole unità dismesse, una di 40 mq e l'altra di 18 mq, attraverso un connettivo di appena 4 mq, da ricavare sottraendolo dal vano scala per gentile concessione degli altri condomini della palazzina, per un totale di 62 mq calpestabili.

I miei bozzetti rappresentano chiaramente l'idea di progetto; si possono notare alcuni dettagli che, oltre ad evidenziare quanto sia importante sfruttare al massimo ogni centimetro di questo spazio, palesano la sofisticata ricercatezza della padrona di casa che non vuole un semplice appartamento, ma una dimora in linea con la sua personalità.

Come si vede dalle foto proposte nella galleria, ci saranno da curare molti aspetti costruttivi (tetti, pavimenti, intonaci ... tutto da rifare), perché lo spazio attualmente si presenta quasi fatiscente. In ogni caso mi stimola molto questo nuovo progetto; si trova nel centro storico di Pietrasanta e pertanto sarà una vera a propria esperienza immersiva nella storia di questa straordinaria cittadina toscana.

case history

24 febbraio 2011

RS.HOUSE CANTIERE

Come già accennato nel precedente articolo sui bozzetti di RS.HOUSE (vedi LINK), gli aspetti edilizi da curare per questo cantiere sono stati tanti e tutti molto delicati, soprattutto perché alcuni di natura strutturale. Nella galleria di immagini possiamo notare che quello che abbiamo scoperto sotto l’intonaco era una struttura fatiscente che necessitava di accurati consolidamenti; addirittu...

Continua...

30 maggio 2011

RS.HOUSE MANIGLIA

Siamo ormai agli sgoccioli dei lavori di RS.HOUSE (vedi LINK del cantiere). In questo articolo presento uno degli ultimi dettagli che ho curato: la maniglia in marmo ancorata su una struttura in acciaio AISI 316, fissata a sua volta sul portone blindato, e adeguatamente distanziata per poter infilare comodamente le dita durante l'impugnatura; la struttura in acciaio contiene una contro-c...

Continua...

14 settembre 2011

RS.HOUSE CERCHIATURA

La proprietaria di RS.HOUSE, in attesa di ultimare i lavori di completamento dell'appartamento situato al 1° piano (vedi LINK del cantiere), mi ha incaricato di dirigere i lavori di cerchiatura dell'appartamento che si trova al 2° piano della stessa palazzina di Pietrasanta, anch'esso di sua proprietà, per una cautela e per una eventuale ristrutturazione da effettuarsi in futuro anche su ques...

Continua...

18 ottobre 2011

RS.HOUSE COMPLETED

Ora che i lavori di RS.HOUSE sono completati, pubblico le foto dello spazio finito e accenno brevemente ad alcuni dettagli che lo caratterizzano: il disegno delle pareti faccia vista (opus incertum toscano) vs. intonaco (vedi link del cantiere dove è raccontata l'operazione di sabbiatura); le superfici a specchio per il MIRROR TV, per lo sportello del vano caldaia, per l'armadio in camera; l'...

Continua...

28 aprile 2013

DOMUS AUREA ARTICOLO

RS.HOUSE è stato un percorso davvero importante per me: ho scoperto sul campo tanti aspetti del mio lavoro che non conoscevo e ho potuto tastare da vicino quali sono le vere responsabilità di un architetto. Questa avventura si conclude con un bellissimo articolo, pubblicato nel trimestrale gennaio/marzo 2013 di DOMUS AUREA, una particolare rivista di architettura che tratta soprattutto temi legati...

Continua...

01 novembre 2011

RS.HOUSE

Per RS.HOUSE ho creato un nuovo spazio abitativo originato dal collegamento di due piccole e dismesse unità immobiliari (una abitazione di 40 mq e un vecchio ufficio di 18 mq) attraverso la formazione di un connettivo in corrispondenza del pianerottolo condominiale. Oltre a comporre uno spazio completamente nuovo e stravolto rispetto alla configurazione precedente, sono stato molto attento a ...

Continua...

news in evidenza

vantaggiani-floor

03 marzo 2025

VANTAGGIANI FLOOR

Oggi vi porto all'interno di uno dei cantieri che sto seguendo di recente; si tratta di una masseria...

Continua...

news