10 maggio 2014
Dopo mesi di rilievi accurati e misurazioni sul campo (vedi LINK dell’avvio del cantiere), e a seguito di una progettazione mirata sulle reali esigenze del cliente, posso finalmente dire che il progetto di GG.HOUSE è giunto a compimento.
Nella galleria condivido alcuni highlights del percorso progettuale:
- le prime ipotesi per la realizzazione del grande finestrone sul lato nord;
- le diverse soluzioni di corrimano: metallo e combinazione muratura + metallo;
- i rendering con le prime mood board materiche;
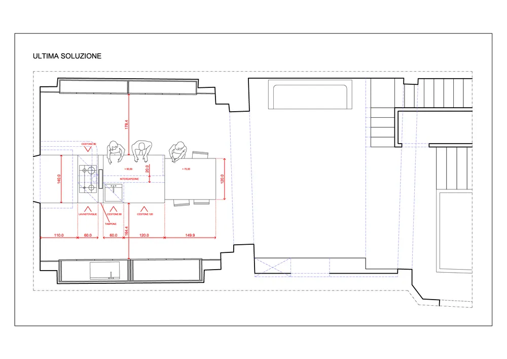
- gli studi per la zona cucina al primo piano;
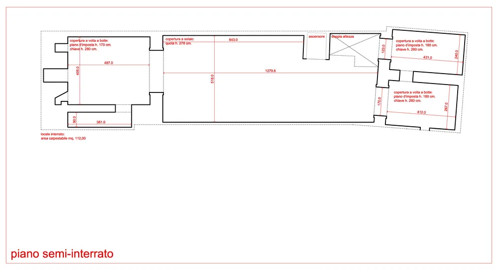
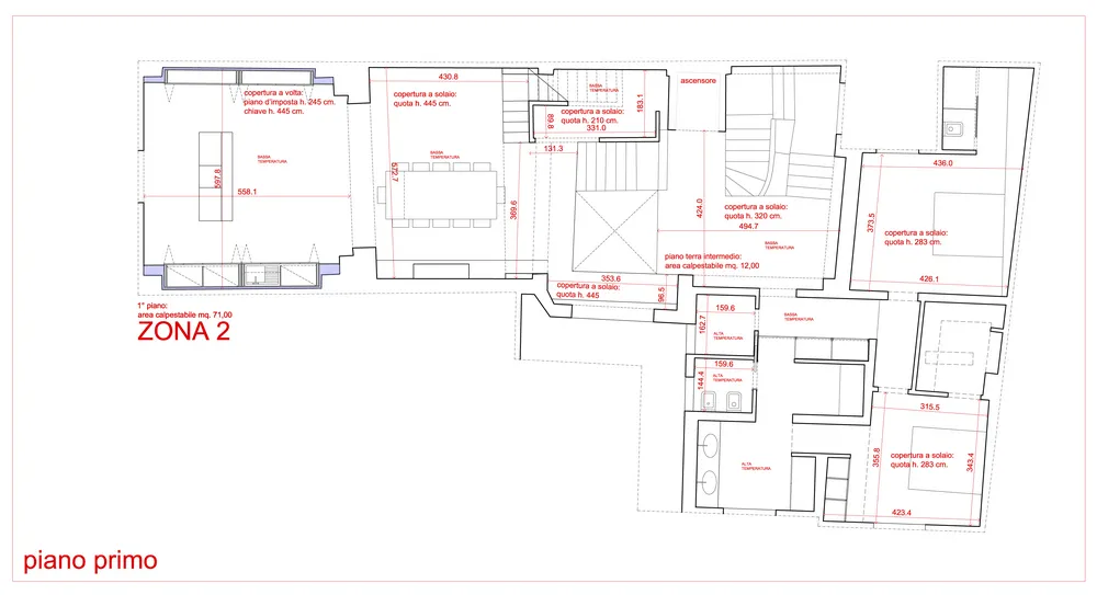
- alcune planimetrie dedicate all’assetto impiantistico;
- l’analisi delle funzioni e delle stratigrafie murarie;
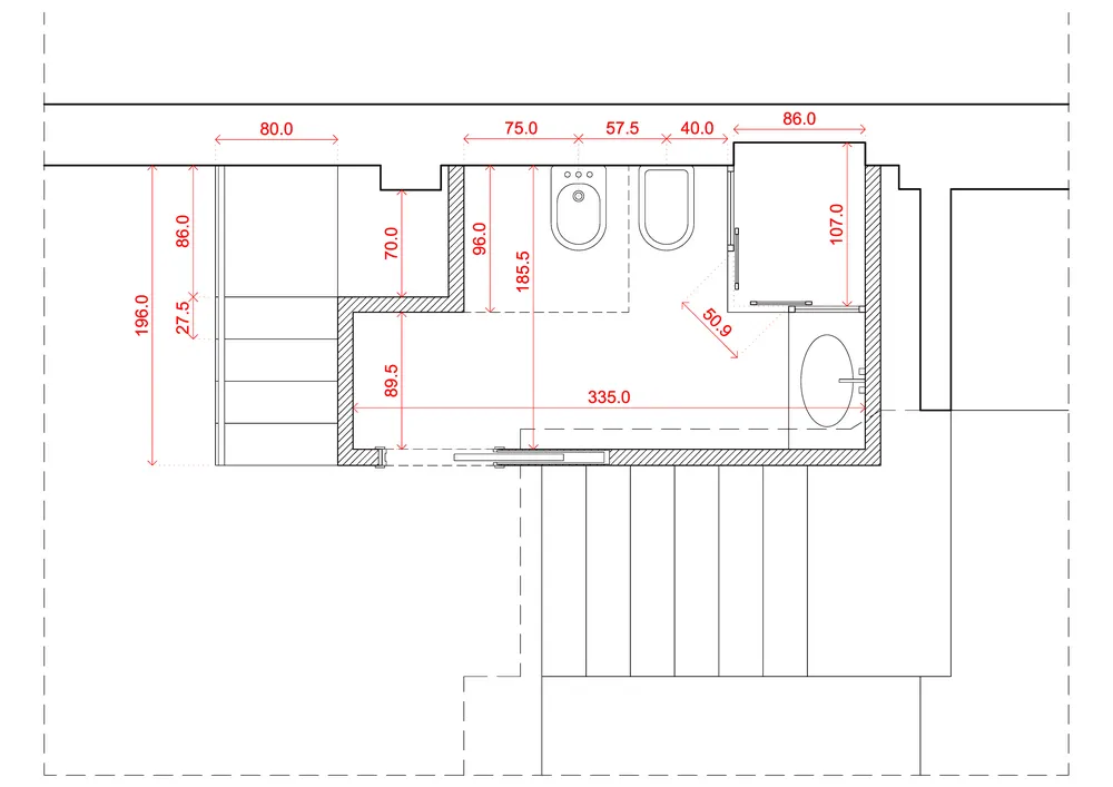
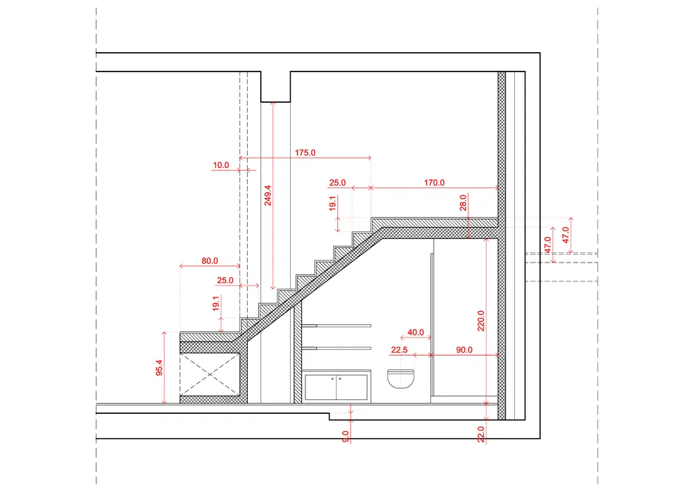
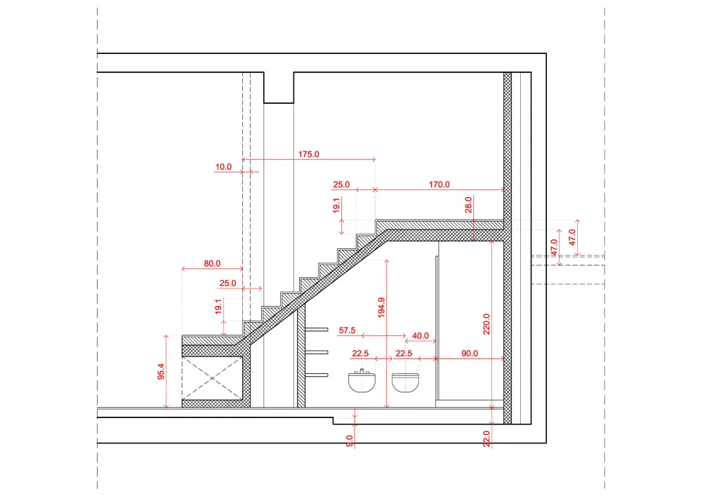
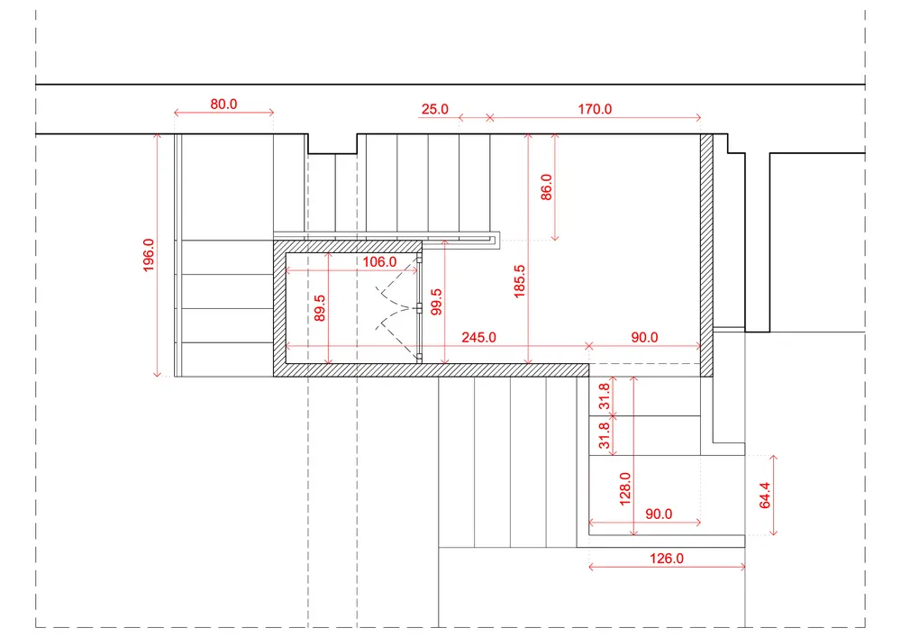
- il progetto esecutivo del volume bagno di servizio al primo piano, integrato con la scala di collegamento al quarto livello.
Un percorso complesso, ma estremamente stimolante, in cui ogni scelta è stata guidata da un senso di equilibrio tra estetica, funzionalità e identità dello spazio.
17 settembre 2013
Nel mentre sono impegnato in un altro cantiere a La Spezia (vedi LINK), sono stato finalmente incaricato di gestire il progetto di una residenza nella mia città d’origine: Sava. Prende così ufficialmente avvio il cantiere GG.HOUSE....
Continua...
22 settembre 2014
Ormai il cantiere di GG.HOUSE è entrato nel vivo (vedi LINK della fase di progettazione). È stato realizzato il volume del bagnetto al primo piano, attorno al quale si sviluppa la scala che conduce al quarto livello, in corrispondenza del quale si può osservare l’artificio tecnico-strutturale progettato per garantire un’adeguata altezza interna al bagnetto: una breve rampa di pochi gradini in disc...
Continua...
08 novembre 2015
Un cantiere che mi ha accompagnato per oltre due anni, guidato sempre da un pensiero costante: raggiungere la bellezza! La bellezza è un concetto complesso, profondamente soggettivo. Non è mai scontato che la visione del progettista coincida perfettamente con quella del cliente. Eppure, in GG.HOUSE, credo sia oggettiva ed evidente l’attenzione che ho dedicato ad ogni singolo dettaglio. Tre element...
Continua...
01 dicembre 2015
Il percorso di GG.house è stato caratterizzato da significative complessità sin dalle fasi iniziali. L'attività progettuale che racconto in questo articolo, riguarda infatti il proseguimento di un progetto già avviato, del quale erano state realizzate le strutture in cemento armato sotto la direzione di un altro tecnico....
Continua...