about > News > AVVIO CASA DELI
29 luglio 2013
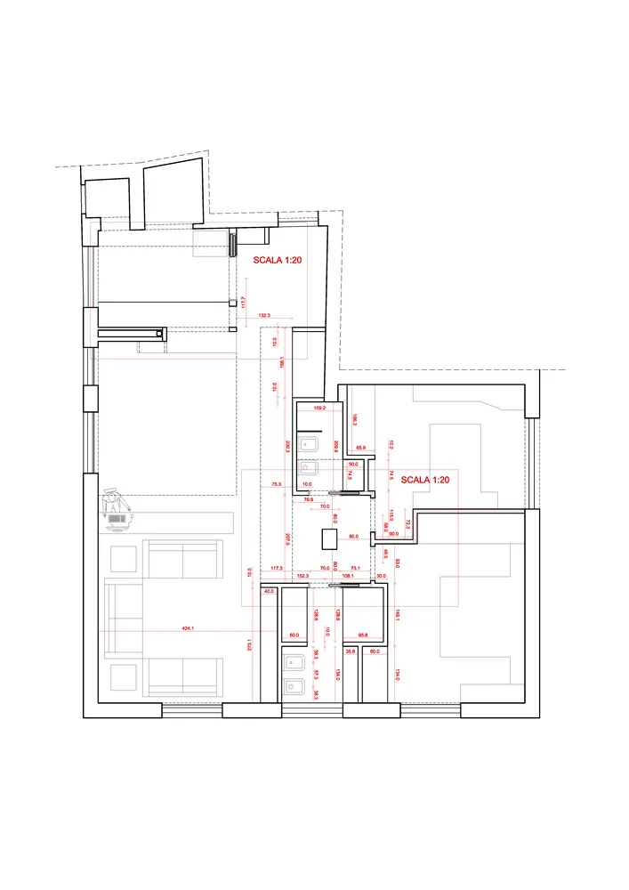
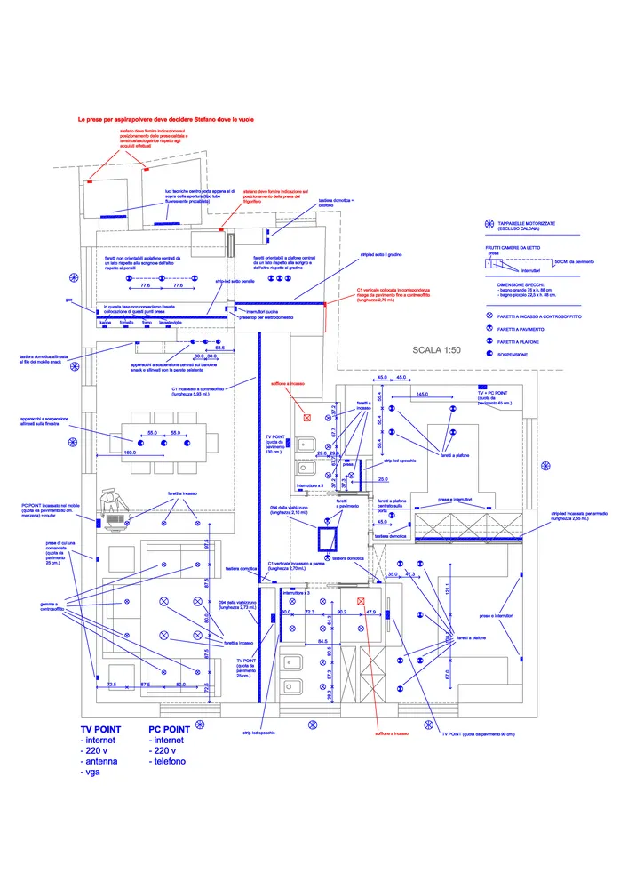
Ci siamo! Finalmente è stato avviato il cantiere CASA DELI. Dopo le esperienze di laboratorio NAIKA (vedi LINK) e di CASA GIOVANNINI (vedi LINK) continua la mia collaborazione con la società Epoke, nominata per eseguire i lavori chiavi in mano anche in questa piccola residenza di proprietà di un giovane chef di La Spezia. Nella galleria ho inserito alcuni disegni tecnici, i rendering realizzati in collaborazione con spazioAM, le foto delle demolizioni, le immagini della muratura grezza e della fase degli intonaci. Sono molto orgoglioso di questo progetto perché, nonostante le limitazioni del budget, ho tentato di inserire alcuni elementi architettonici riconoscibili attraverso l'uso del colore per caratterizzare meglio l'estensione longitudinale dell'open-space. Tra le altre propongo anche una mia foto alle prese con il rilievo, nell'angolo ufficio che ho ricreato all'interno del cantiere.
21 novembre 2013
Penso spesso al fatto che è davvero difficile introdurre segni architettonici negli interventi residenziali. Perché un determinato "segno" per me può avere un'importanza anche rilevante nella sua dimensione architettonica; ma il proprietario di casa dovrà convivere un bel pezzo della sua vita insieme a quel "segno". Per noi architetti non è quindi così semplice introdurre la nostra semantica ...
Continua...
08 febbraio 2014
Dopo soli 6 mesi di cantiere (vedi LINK dell'avvio), CASA DELI è finalmente pronta per essere vissuta. Nonostante un budget limitato, il lavoro di squadra ha fatto la differenza, permettendo di raggiungere un risultato di grande qualità. I segni architettonici pensati per questo intervento sono oggi ben evidenti e definiscono con forza l’identità di questa residenza domotica. Fondamentale anche il...
Continua...
01 marzo 2014
Nel luglio 2013 prende avvio il cantiere di CASA DELI (vedi LINK dell'avvio del cantiere), una piccola residenza di proprietà di un giovane chef di La Spezia. L’incarico mi è stato affidato direttamente dalla società Epoke, con cui collaboro da anni e che è stata scelta per la realizzazione dei lavori chiavi in mano. In questo articolo presenterò, come di consueto, tutte le fasi del processo reali...
Continua...